Sanoczek - Nowy Dom na Sprzedaż
Oferujemy nowo wybudowany dom jednorodzinny o powierzchni użytkowej 156 m², usytuowany na 11-arowej działce, w cichej i zielonej okolicy miejscowości Sanoczek gm. Sanok , z jednocześnie bardzo dobrym dojazdem do miasta.
Dom w trakcie budowy, co daje możliwość wykończenia go zgodnie z własnym gustem i potrzebami. Garaż w bryle budynku zapewnia wygodę i funkcjonalność na co dzień.
Technologia budowy:
- ściany wykonane z pustaka Suporex,
- ocieplenie styropianem o grubości 20 cm,
- elewacja wykończona tynkiem silikonowym,
- okna plastikowe, trzyszybowe,
- system kominowy w salonie – możliwość wykonania kominka.
Przemyślany układ – funkcjonalność i przestrzeń
Dom w stanie umożliwiającym indywidualną aranżację, co pozwala na pełne dopasowanie wnętrza do potrzeb przyszłych właścicieli.
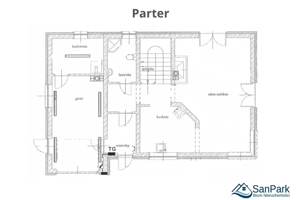
Parter – otwarta strefa dzienna:
- przestronny salon z jadalnią (31,52 m²) z wyjściem na taras,
- funkcjonalna kuchnia (10,12 m²),
- łazienka,
- kotłownia oraz pomieszczenie porządkowe,
- garaż (19,53 m²),
- wiatrołap i komunikacja.
Poddasze – komfortowa strefa prywatna:
- 3 ustawne pokoje (idealne na sypialnie, pokoje dziecięce lub gabinet),
- pokój z garderobą,
- duża łazienka,
- wygodna komunikacja.
Działka zróżnicowana terenowo, dająca ciekawe możliwości aranżacji ogrodu oraz strefy wypoczynkowej. Taras idealnie sprawdzi się jako miejsce relaksu i spotkań z rodziną lub znajomymi. Dojazd utwardzoną drogą gminną. W sąsiedztwie luźna zabudowa jednorodzinna.
Media:
- kanalizacja – wykonany projekt przyłącza (w pasie drogi gminnej),
- wodociąg – przyłącze w drodze gminnej,
- przyłącze energetyczne – na działce sąsiedniej,
- gaz dostępny na działkach sąsiednich.
Opis oferty zawarty na stronie internetowej sporządzany jest na podstawie oględzin nieruchomości oraz informacji uzyskanych od właściciela, może podlegać aktualizacji i nie stanowi oferty określonej w art. 66 KC i następnych.
Powołaj się na ogłoszenie z esanok.pl
Wyślij wiadomość:
Zobacz inne ogłoszenia z kategorii:
Domy











